Espace propriétaire
fr

Votre recherche

Roppentzwiller (68480)

4 087 m²

Entrepôt à louer avec option d'achat

5 000 € / mois HC*
Ref : 481 OM
A propos de ce bien

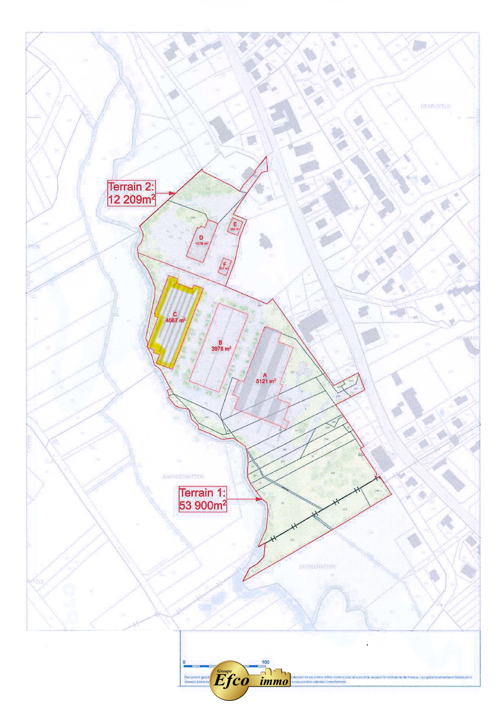
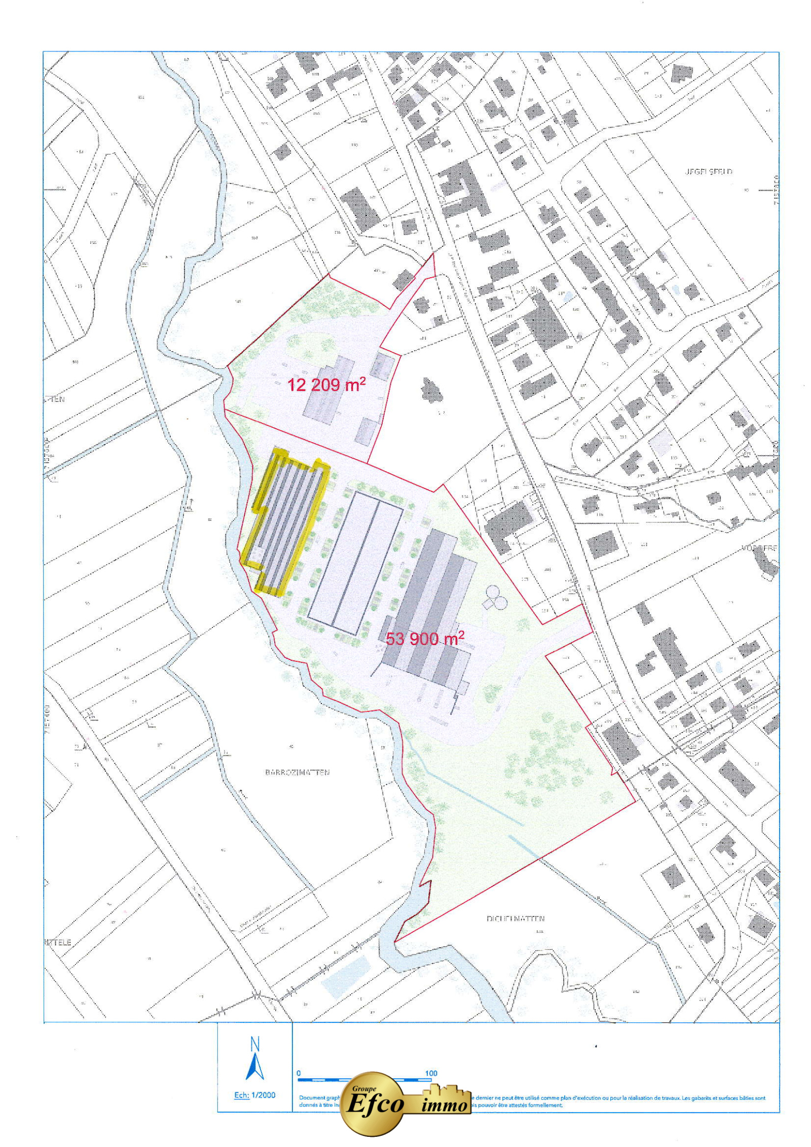
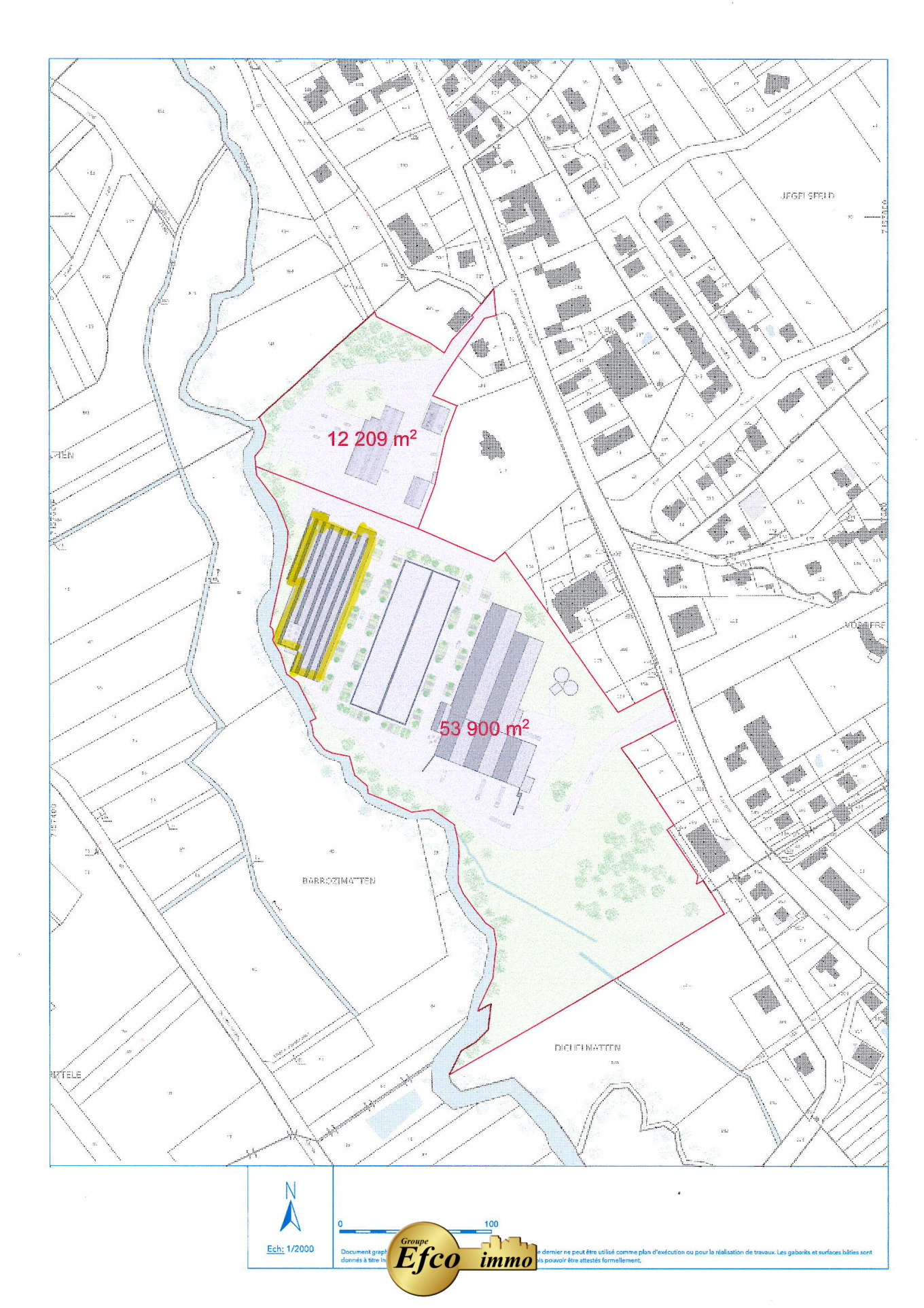
À louer – Entrepôt de 4 087 m² sur site industriel en reconversion – Roppentzwiller

Situé à Roppentzwiller, au cœur d’un ancien site industriel en cours de réhabilitation, cet entrepôt de 4 087 m² offre un fort potentiel pour le développement de diverses activités professionnelles.

Caractéristiques :

  • Surface : 4 087 m²

  • Site modulable, adaptable selon les besoins spécifiques de votre activité

  • Emplacement stratégique à mi-chemin entre :

    • La Suisse romande

    • La Suisse alémanique

    • Le Territoire de Belfort

    • Saint-Louis

Opportunité d’acquisition :

Au terme d’un bail de 3 ans, il est possible d’acquérir le local, une opportunité idéale pour les entreprises cherchant à s’implanter durablement.

Pour plus d'informations, contactez l'agence Efco Immo.

Descriptif de ce bien
Général
Type de transac Local professionnel
Code postal 68480
Superficie (m²) 4087
Financier
Loyer 5 000 € / mois
Dont état des lieux Non renseigné
Dépot de garantie 15 000 €
Charges locatives (provision donnant lieu à régularisation annuelle) 500 €
Bail bail
Energie
DPE GES
Autour du bien
  • Commerces et santé
  • Loisirs
  • Ecoles
  • Transports
  • Pratique
Contacter pour ce bien
L'agence
Téléphone 03 89 89 90 58
E-mail info@efco.fr
Adresse
2 rue concorde 68300 Saint-Louis

* Champ obligatoire

Les informations recueillies sur ce formulaire sont enregistrées dans un fichier informatisé par La Boite Immo agissant comme Sous-traitant du traitement pour la gestion de la clientèle/prospects de l'Agence / du Réseau qui reste Responsable du Traitement de vos Données personnelles. La base légale du traitement repose sur l'intérêt légitime de l'Agence / du Réseau. Elles sont conservées jusqu'à demande de suppression et sont destinées à l'Agence / au Réseau. Conformément à la loi « informatique et libertés », vous disposez des droits d’accès, de rectification, d’effacement, d’opposition, de limitation et de portabilité de vos données. Vous pouvez retirer votre consentement à tout moment en contactant directement l’Agence / Le Réseau. Consultez le site https://cnil.fr/fr pour plus d’informations sur vos droits. Si vous estimez, après avoir contacté l'Agence / le Réseau, que vos droits « Informatique et Libertés » ne sont pas respectés, vous pouvez adresser une réclamation à la CNIL. Nous vous informons de l’existence de la liste d'opposition au démarchage téléphonique « Bloctel », sur laquelle vous pouvez vous inscrire ici : https://www.bloctel.gouv.fr Dans le cadre de la protection des Données personnelles, nous vous invitons à ne pas inscrire de Données sensibles dans le champ de saisie libre.
Ce site est protégé par reCAPTCHA, les Politiques de Confidentialité et les Conditions d'Utilisation de Google s'appliquent.

Découvrir nos outils